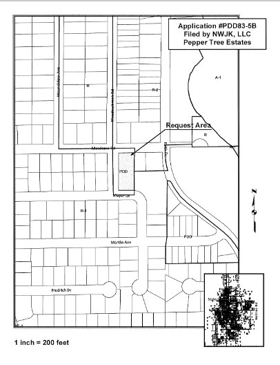
At this week's City Commission meeting, Commissioners heard a request to abandon and repeal the approved preliminary and final development plan for the Pepper Tree Estates POD and to eliminate all Common Area and the Homeowners Association to create four independently owned residential building lots. Pepper Tree Estates is located on the east side of Meadowbrook Drive between McAdams Road and Meyer Drive.

BACKGROUND:
The Meyer Addition is located on the east side of South Ohio Street between McAdams Road and Republic Avenue. When the Meyer Addition plat was approved in 1978, Lots 1-11, Block 9 were zoned R-1 (Single-Family Residential). In 1983, Charles Stover requested approval of a Planned Development District (POD) to allow construction of nine (9) two-unit townhomes with garages on this block. The townhome units were to be sold individually with the remaining ground owned and managed as Common Area by a Homeowner's Association (HOA).

On January 9, 1984, the Salina City Commission approved a preliminary POD for Lots 1-11, Block 9 through Ordinance No. 84-8989, which rezoned those lots from R-1 to POD R-2.

On February 7, 1984, the Salina City Planning Commission approved a final development plan for this development to be known as Pepper Tree Estates. This final development plan was recorded in the Saline County Register of Deeds office and served as the means of conveying the individual townhome units as lettered and numbered on the plan.
Only two townhomes were actually built (Units B5 & B6 and B7 & B8), the two closest to Meadowbrook Drive, and on October 25, 1989, the City of Salina purchased the remainder of the Pepper Tree Estates property at tax sale due to unpaid special assessments and property taxes.
On May 21, 1990, the Salina City Commission agreed to sell the remaining undeveloped portion of Pepper Tree Estates property to Roger and Maureen Mattison for $36,000, which almost covered the City's investment in the property.
Staff Recommendation
Staff is recommending that this Planned Development District be modified rather than repealed altogether due to the noncompliance of the townhome units at 1302 McAdams Road and 1303 Meyer Drive with the R-2 district regulations. These two of townhome units are nonconforming with the R-2 bulk regulations as noted on the attached summary sheet. By retaining the POD and approving the variations requested by the property owners, the owners of those townhomes would be able to rebuild them in the current location and dimensions if they were more than 50% damaged by fire or other event. It would also facilitate future owners with obtaining bank financing.
The Planning Commission conducted a public hearing on this request from the current townhome owners at their April 18, 2023 meeting. Following presentation of the staff report and comments from the property owners' attorney, the Planning Commission voted 7-0 to recommend that Ordinance 84-8989 and the approved/recorded final development plan for Pepper Tree Estates be repealed and replaced by a new ordinance that reflects existing developed conditions at 1300 & 1302 McAdams Road and 1301 & 1303 Meyer Drive.
FISCAL NOTE:
There would be no fiscal impact on the City of Salina if this request is approved.
The motion to approve the recommendation of the Planning Commission and approve Ordinance No. 23-11153 repealing the 1984 POD Ordinance (No. 84-8989) and replacing it with a new POD ordinance that reflects the existing developed conditions on first reading was approved 5-0.